0432 511950
Nascondi

SPAZIO DIREZIONALE CON VETRINE E PARCHEGGI RISERVATI

€ 2.000
PAU4040815 | camere n.d. | bagni n.d. | 233 mq
  • Clicca per ingrandire

Dettagli:

  • Ascensore: no
  • Piano: 9997
  • Barriere Archittettoniche: no
  • Riscaldamento: Centralizzato
  • Spese condominiali: Spese condominiali: € 250 /mese
  • Terrazze:
  • Giardino:
  • Posto auto: Scoperto
  • Classe energetica: A+
  • Ipe: n.d. kWh/m² anno
  • Anno di costruzione: 2010
  • Arredato: No

Descrizione:

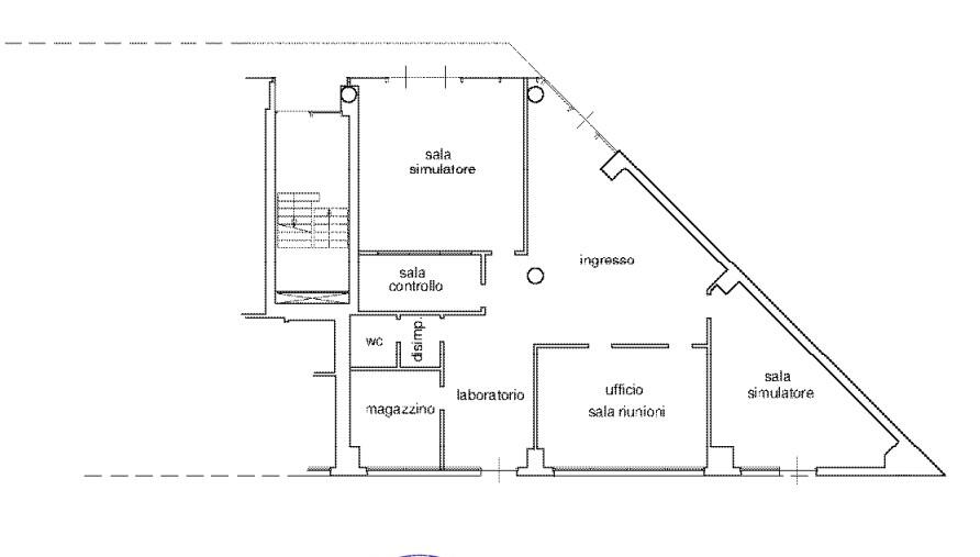
TAVAGNACCO – SPAZIO DIREZIONALE CON VETRINE E PARCHEGGI RISERVATI In complesso commerciale direzionale fronte strada di recente costruzione (2010), proponiamo spazio direzionale con ampie vetrine, ideale per uffici, studi professionali e sedi aziendali. L’immobile si sviluppa in: 4 uffici indipendenti, ampio open space e servizio igienico con antibagno. Sono presenti tre ingressi pedonali sui fronti nord e sud, oltre a serramento a doppia anta per l’accesso di materiali ingombranti. Climatizzazione centralizzata estiva/invernale con contacalorie, le unità interne ad aria a soffitto gestibili autonomamente

4 posti auto scoperti riservati ad uso esclusivi e parcheggio visitatori a servizio del complesso

Canone: € 2.000 + IVA / mese, Contratto 6 + 6

Deposito cauzionale: 3 mensilità

Classe energetica " A3" 

VENDITA TRATTATIVA RISERVATA